Wednesday, 29 April 2026

Cultural Centre fully funded says Council

Bass Coast Shire Council has reassured the community the Cowes Cultural Centre project is fully funded.

. profile image
by .
Cultural Centre fully funded says Council
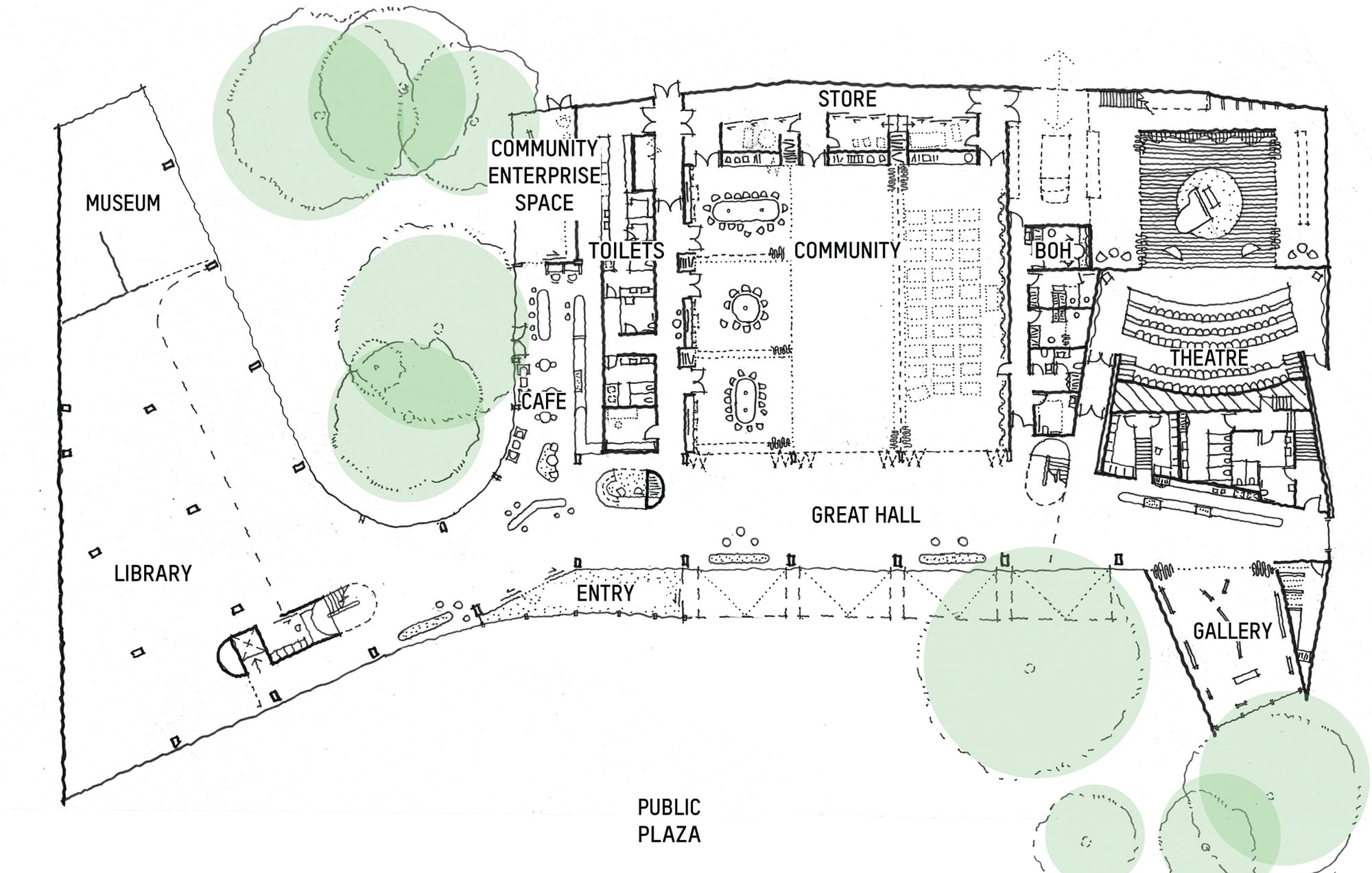
Council has said construction of the new Cowes Cultural Centre project is fully funded and construction will start this year. This draft plan, released in September last year, shows the two-storey building includes a library, museum, gallery, community function space and theatre/cinema.

Read More

puzzles,videos,hash-videos,digital-edition,read-island-magazine,videos