Wednesday, 11 February 2026

Library funding a boost for Cultural Centre

The state government announced the project has secured an $800,000 grant from the Living Libraries fund.

. profile image
by .
Library funding a boost for Cultural Centre
Bass Coast Shire Council has successfully secured an $800,000 grant from the state government's Living Libraries fund, for construction of a new library, as part of the Cowes Cultural and Community Centre.

The budget for the Cowes Cultural and Community Centre has received a boost today, with the state government announcing the project has secured an $800,000 grant from the Living Libraries fund.

At the March meeting, the Council confirmed it had applied for a $1 million grant for the library, which is part of the new Cultural Centre development.

Architects from Jackson Clements Burrows, the firm awarded the $1.4 million contract to finalise the designs for the new building, worked with West Gippsland Regional Library Corporation on the plans for the new library.

In September 2020, Facilities Manager for West Gippsland Libraries, Jenny Dunn told the Advertiser they were excited to be included in the project and “a new library in Cowes will be of great value to the community and surrounding area”.

“We are very fortunate to be actively involved in the consultation process with the architects and Council and are looking forward to working on the project with them,” Ms Dunn said.

“The library space will be much larger than the existing library and will allow us to offer additional programming and expand the collection. The design includes a dedicated children’s area, group collaboration tables, teen space and plenty of seating for visitors to enjoy some quiet time or use the Wifi.

“The finished development will be a wonderful community space where everyone can come together – a great asset for Phillip Island.”

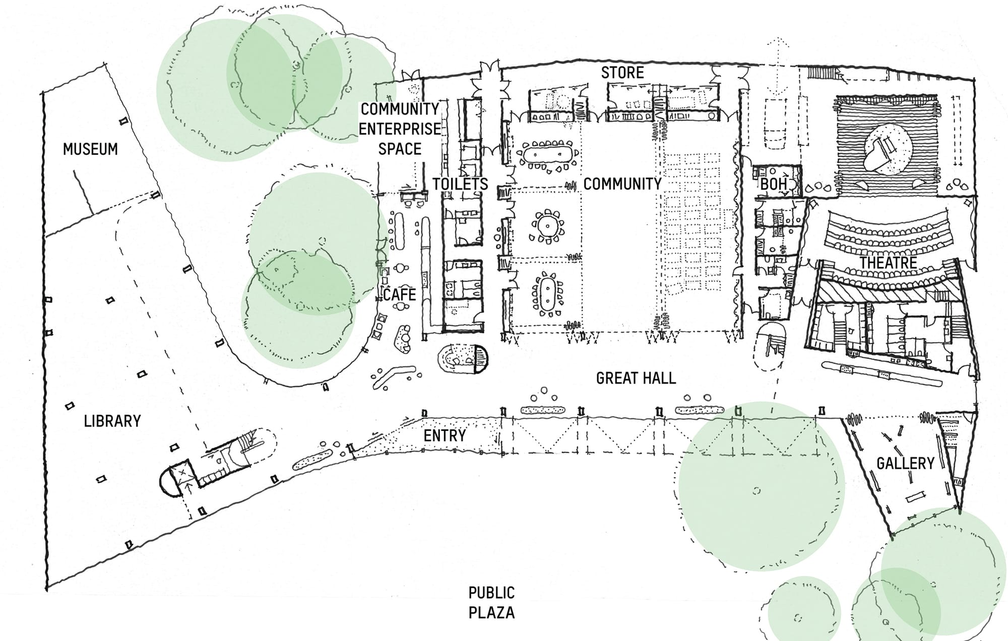
The new two-storey cultural and community centre will include a library, theatre, café, function space, kitchens, art gallery, office space, meeting rooms and designated spaces for the historical and genealogical society.

Final designs for the centre are due to be released later this month.

Click here to subscribe to the Advertiser online for unlimited access to local news, sport, historical files and more.

Read More

puzzles,videos,hash-videos,digital-edition,read-island-magazine,videos